冷媒ガス漏れ 10年保証付き
ガリレイグループは冷媒漏洩による地球温暖化ゼロを目指し、当初想定していた2025年から1年前倒し、2024年4月よりグリーン冷媒採用機種(機種名に[X])において、冷媒漏洩による故障を10年間保証する取り組みを開始することとなりました。詳細な保証条件は無料修理規定をご確認ください。

グッドデザイン賞 受賞
台下の厨房機器は利便性を求めるとお客様の目に付く配置となることが多いが、これまでの製品はあまり見せたくないデザインばかりだった。本製品の意匠性の高い外観はそうしたネガティブな印象が排除され、店舗のレイアウトがより柔軟になる。通常、左右と後方の意匠は他の什器によって隠れてしまうのだが、本製品は単独配置もできる外観が形成されている。特にベンチレーションとその周辺のデザイン処理に企業の努力の跡を見ることができる。
キューブアイス(セル方式)
不純物の少ない透明度の高い氷ができます。
セル方式の自動製氷機です。不純物が少なく、透明度の高いキューブアイスを提供します。飲料用として、保冷用として、さまざまな用途で活躍します。

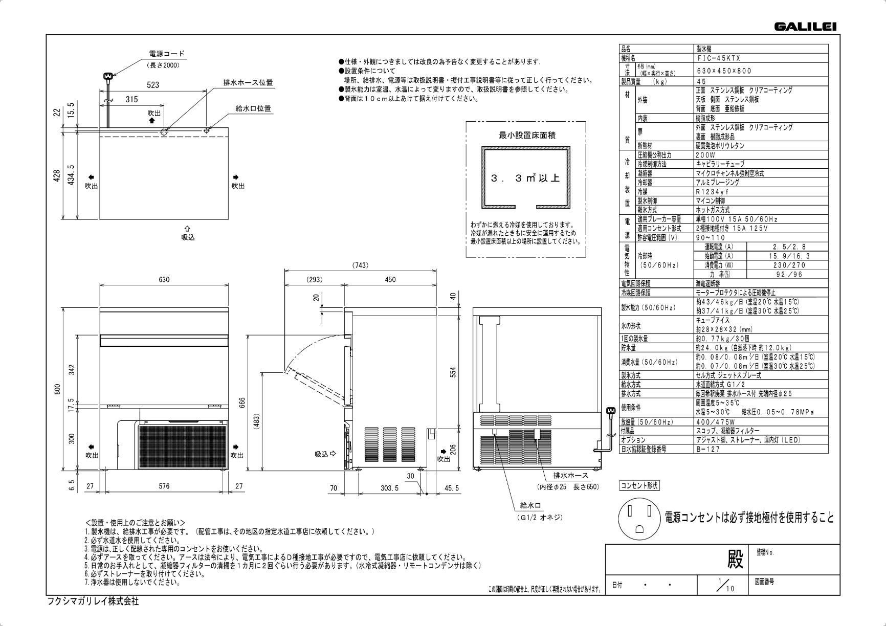
アンダーカウンタータイプ&バーチカルタイプの特徴
-
衛生面
-
外装は清潔性の高いクリアコーティング加工
セル方式の自動製氷機です。不純物が少なく、透明度の高いキューブアイスを提供します。
飲料用として、保冷用として、さまざまな用途で活躍します。防カビ剤・抗菌剤配合の扉パッキン
庫内を衛生的に保つため、特殊な加工を施しています。
開けやすい扉ハンドル
ハンドルはフラット形状かつ水滴が庫内に流れ込まないよう勾配付に。
防虫・防臭効果の排水トラップを採用
虫や臭いの侵入を防ぐ、専用の排水トラップを採用。
-
機能面
-
スコップフォルダーを採用
化粧ネジにアイススコップが接触しない専用のスコップフォルダーを採用。氷の取り出し時、氷に手が触れないので衛生的です。
フィルター清掃も容易
フィルターは機械室パネルを外すことなく着脱可能。
-
省スペース
-
壁面にピッタリ配置が可能
製品の背面にへこんだスペースを設け、前面に補助排気口を追加することにより、背面を壁面にピッタリ設置することができます。
給排水の取り回し向上
給水管・排水ホースの取り回しが三方可能です。
-
メンテナンス
-
メンテナンス性の向上
電装箱とユニット部を引出せる構造なので、メンテナンス作業がスムーズにできます。
-
安全性
-
接地形2極用プラグで安全性の向上
感電防止などの安全性の向上のために接地形2極用プラグ標準装備に変更しました。